Nu har vi bott i vårt 50-talshus i 3,5 år.
Innan vi flyttade in i huset
målade vi alla innerväggar. Väggarna var vita i hela huset men
de behövde piggas upp lite.
Vi uppdaterade köket med ett nytt golv och
nya bänksivor.
Första året lade vi om taket ovanpå
Hanna studio, bytte panelen och fönster på framsidan av huset.
Jag fixade till balkongdörrarna på ovanvåningen, jag satte dit nya
dörrspeglar de gamla höll på att lossna. Jag målade också ytterdörrarna på
baksidan av huset. Anders skrapade och målade balkongräcket på baksidan
av huset och Ola målade panelen utanför sovrummen på andra
våningen. Vi bytte värmeväxlare och monterade termostater på elementen.
Andra året målade vi väggar och golv i Hannas Studio, golvet blev vitt och väggarna blev gråa. Vi
byggde vi ett trästaket mot gatan, det gamla
staketet var ruttet och fult. Anders skrapade och målade panelen och fönster
utanför vardagsrummet.
3:e året har vi renoverat
toalett och badrum på andra våningen. Vi har köpt ny spis till köket.
Anders har monterat in avluftning så att
innerklimatet har blivit bättre.
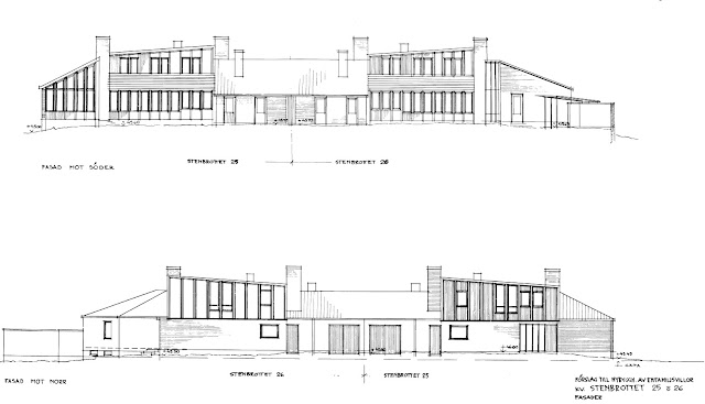
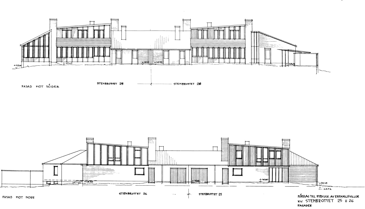
Inför badrumsrenoveringen beställde Anders
ritninga från kommunen över vårt hus.
Vårt hus som är parhus
är till vänter på den översta bilden ritad över baksidan och
till höger på den nedersta bilden över framsidan av huset.
Anders har ramat in denna bild
och det blev en urläcker tavla som hänger i vardagsrummet.
I höst kommer 3 fönster att bytas ut och den platta delen av taket
kommer att få ny papp. Kanske blir det en heltäckningsmatta
till vårt sovrum.
Och så har Anders så klart sina drömmar som uterum, penthhouse på taket …
Jag är väldigt nöjd med de förbättringar vi gjort så
långt. Nu skulle jag vilja piffa till vårt sovrum och våra två gästrum på
övervåningen.
Trädgården är helt perfekt för våra behov. Övergången mellan ute och inne
är så flytande, inga trappor ner till marknivå är ett stort plus.
Vi har jobbat lite med gräsmattan för att få den i form och tycker att vi lyckats bra. Vi har planterat rosor mot väggen till vardagsrummet. Anders har röjt ut fula buskar och små träd.
I somras to vi ner en stor tall som skräpade och skuggade uteplatsen.
Tallen var mitt projekt, fick bekostas från mitt konto,
har man en man som är trädkramare så har man…
är så flytande, inga trappor ner till marknivå är ett stort plus.
Vi har jobbat lite med gräsmattan för att få den i form och tycker att vi lyckats bra. Vi har planterat rosor mot väggen till vardagsrummet. Anders har röjt ut fula buskar och små träd.
I somras to vi ner en stor tall som skräpade och skuggade uteplatsen.
Tallen var mitt projekt, fick bekostas från mitt konto,
har man en man som är trädkramare så har man…
Huset på Ormberget



